COMITATO UNITARIO per lo Sviluppo di Frigole e del Litorale Leccese

Archivi mensili per giugno, 2016

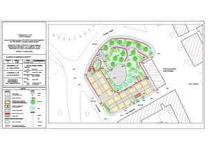
Area mercatale: avviati i lavori

Area mercatale: avviati i lavori

  Dopo la sistemazione della strada a mare, sono iniziati i lavori per l’area mercatale di Frigole. Finalmente avremo uno spazio adeguato per offrire i prodotti della nostra agricoltura. Il forno comunitario presente nell’area, che ci racconta la storia delle bonifiche, sarà restaurato e restituito alla sua funzione. E’ un successo della Regione, del Comune […]

Finanziamenti per la rete idrica

Finanziamenti per la rete idrica

E’ una buona notizia Auguriamoci che i tempi di realizzazione non siano biblici e che la rete idrica e fognaria copra sia le marine che il loro entroterra Lo scorso anno molti residenti di Frigole, di Torre Chianca, del Villaggio Colombo e zona Villa Dario hanno visto i lavori per la rete idrica ma ne […]

Iscriviti al blog tramite e-mail

Inserisci il tuo indirizzo e-mail per iscriverti a questo blog, e ricevere via e-mail le notifiche di nuovi post.